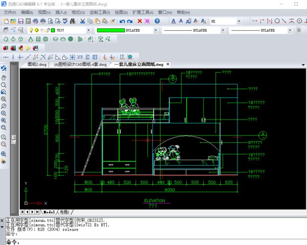
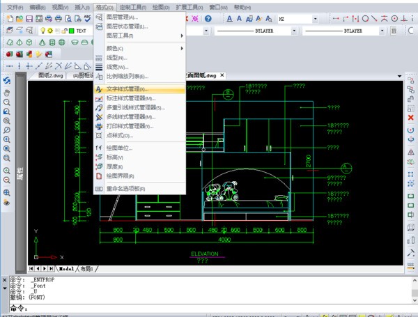
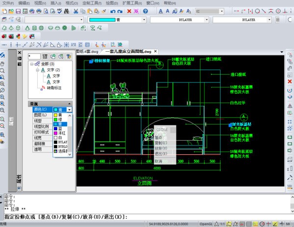
告诉你两个方法:
1、更换字体。点击问号字体,找到字体名称,然后打开字体样式,更换字体为TXT,应用后,RE更新即可。
2、不更换字体。同上,找到问号字体,然后打开字体样式,先将问号字体随便改为一个别的字体,然后在改回来,RE更新即可。
注意如果有符号,这种方法有时不起效!
1、更换字体。点击问号字体,找到字体名称,然后打开字体样式,更换字体为TXT,应用后,RE更新即可。
2、不更换字体。同上,找到问号字体,然后打开字体样式,先将问号字体随便改为一个别的字体,然后在改回来,RE更新即可。
注意如果有符号,这种方法有时不起效!




